13-15 Arlington StHaverhill, MA 01830




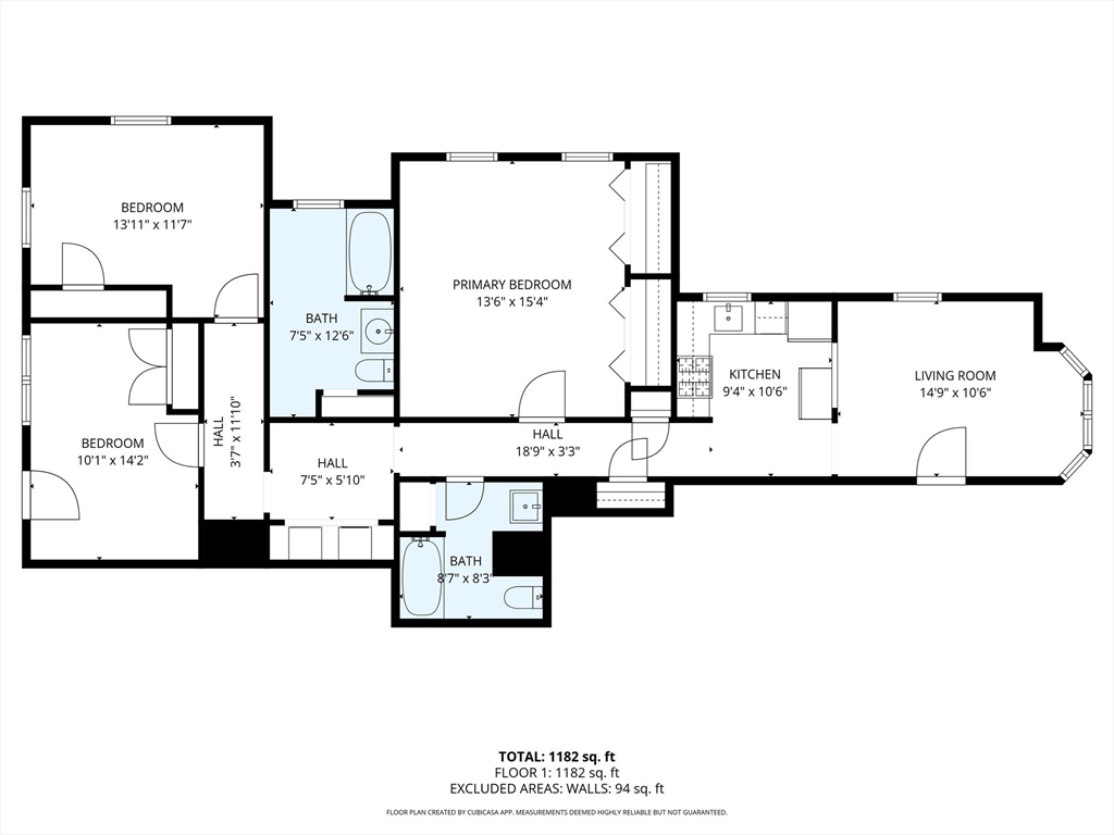
DELEAD Certificates in hand and a money maker. Welcome to 13–15 Arlington Street in Haverhill — a well-maintained four-unit condo building being sold as a 4-family, offering a strong investment opportunity with solid rental income and excellent tenant history. Each spacious unit features 3 or 4 bedrooms, 2 full baths, updated kitchens, and in-unit laundry, blending classic New England charm with modern convenience. Located in a quiet residential neighborhood near Plugs Pond Recreation Area, downtown Haverhill, and major routes including I-495 and Route 125, this property provides consistent returns and easy access to area amenities — perfect for investors or owner-occupants looking to expand their portfolio.
| 2 weeks ago | Listing updated with changes from the MLS® | |
| 2 weeks ago | Status changed to Active Under Contract | |
| 3 weeks ago | Listing first seen on site |
The property listing data and information, or the Images, set forth herein were provided to MLS Property Information Network, Inc. from third party sources, including sellers, lessors, landlords, and public records, and were compiled by MLS Property Information Network, Inc. The property listing data and information, and the Images, are for the personal, non-commercial use of consumers having a good faith interest in purchasing, leasing or renting listed properties of the type displayed to them and may not be used for any purpose other than to identify prospective properties which such consumers may have a good faith interest in purchasing, leasing or renting. MLS Property Information Network, Inc. and its subscribers disclaim any and all representations and warranties as to the accuracy of the property listing data and information, or as to the accuracy of any of the Images, set forth herein.
Last checked 2025-11-08 11:49 PM UTC

Did you know? You can invite friends and family to your search. They can join your search, rate and discuss listings with you.