Save
Ask
Tour
Hide
$839,000
39 Days On Site
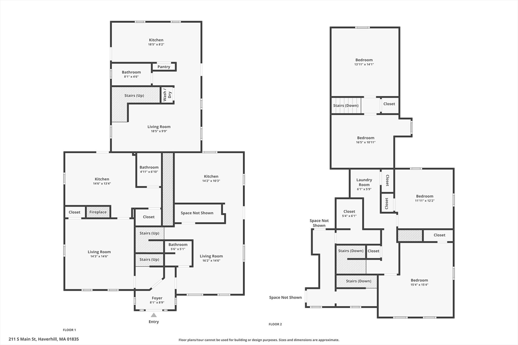
211 S Main StHaverhill, MA 01835
For Sale|Triplex|Pending
6
Beds
3
Total Baths
3
Full Baths
3,493
SqFt
$240
/SqFt
1920
Built
County:
Essex
Call Now: 603-825-6696
Is this the listing for you? We can help make it yours.
603-825-6696



Save
Ask
Tour
Hide
Well-maintained 3-family property in Haverhill’s Bradford area. Each unit offers 2 bedrooms, with two units updated in recent years. Unit 3 was fully rebuilt in 2023. The driveway was newly paved in 2024 and provides assigned off-street parking. Laundry in the units. All units are currently rented, offering strong rental income. Located blocks from downtown shopping, restaurants, and public transportation. This property is a solid addition to an investor’s portfolio and ready for its next owner.
Save
Ask
Tour
Hide
Listing Snapshot
Price
$839,000
Days On Site
39 Days
Bedrooms
6
Inside Area (SqFt)
3,493 sqft
Total Baths
3
Full Baths
3
Partial Baths
N/A
Lot Size
0.15 Acres
Year Built
1920
MLS® Number
73456894
Status
Pending
Property Tax
$8,273
HOA/Condo/Coop Fees
N/A
Sq Ft Source
Public Records
Friends & Family
Recent Activity
| 3 weeks ago | Listing updated with changes from the MLS® | |
| 3 weeks ago | Status changed to Pending | |
| a month ago | Listing first seen on site |
General Features
Acres
0.15
Foundation
Stone
Number Of Stories
6
Parking
PavedOff StreetLeasedAssigned
Parking Spaces
4
Property Sub Type
Triplex
Sewer
Public Sewer
SqFt Above
3493
SqFt Total
3493
Water Source
Public
Zoning
RZ
Interior Features
Appliances
DishwasherMicrowaveRefrigeratorGas Water Heater
Basement
PartialUnfinished
Cooling
DuctlessWindow Unit(s)
Electric
100 Amp Service
Fireplace
Yes
Fireplaces
2
Heating
DuctlessBaseboard
Laundry Features
Washer HookupElectric Dryer Hookup
Save
Ask
Tour
Hide
Exterior Features
Construction Details
Frame
Exterior
Rain Gutters
Lot Features
Corner LotGentle Sloping
Roof
Shingle
Community Features
Community Features
Park
Financing Terms Available
Contract
MLS Area
Bradford
Listing courtesy of Sladic Pajazetovic of Pajazetovic & Company
The property listing data and information, or the Images, set forth herein were provided to MLS Property Information Network, Inc. from third party sources, including sellers, lessors, landlords, and public records, and were compiled by MLS Property Information Network, Inc. The property listing data and information, and the Images, are for the personal, non-commercial use of consumers having a good faith interest in purchasing, leasing or renting listed properties of the type displayed to them and may not be used for any purpose other than to identify prospective properties which such consumers may have a good faith interest in purchasing, leasing or renting. MLS Property Information Network, Inc. and its subscribers disclaim any and all representations and warranties as to the accuracy of the property listing data and information, or as to the accuracy of any of the Images, set forth herein.
Last checked 2025-12-30 07:42 PM UTC
The property listing data and information, or the Images, set forth herein were provided to MLS Property Information Network, Inc. from third party sources, including sellers, lessors, landlords, and public records, and were compiled by MLS Property Information Network, Inc. The property listing data and information, and the Images, are for the personal, non-commercial use of consumers having a good faith interest in purchasing, leasing or renting listed properties of the type displayed to them and may not be used for any purpose other than to identify prospective properties which such consumers may have a good faith interest in purchasing, leasing or renting. MLS Property Information Network, Inc. and its subscribers disclaim any and all representations and warranties as to the accuracy of the property listing data and information, or as to the accuracy of any of the Images, set forth herein.
Last checked 2025-12-30 07:42 PM UTC
Neighborhood & Commute
Source: Walkscore
Disclosure: Community information and market data powered by Constellation Data Labs. Information is deemed reliable but not guaranteed.
Save
Ask
Tour
Hide

Did you know? You can invite friends and family to your search. They can join your search, rate and discuss listings with you.