169 Henry Law AvenueDover, NH 03820




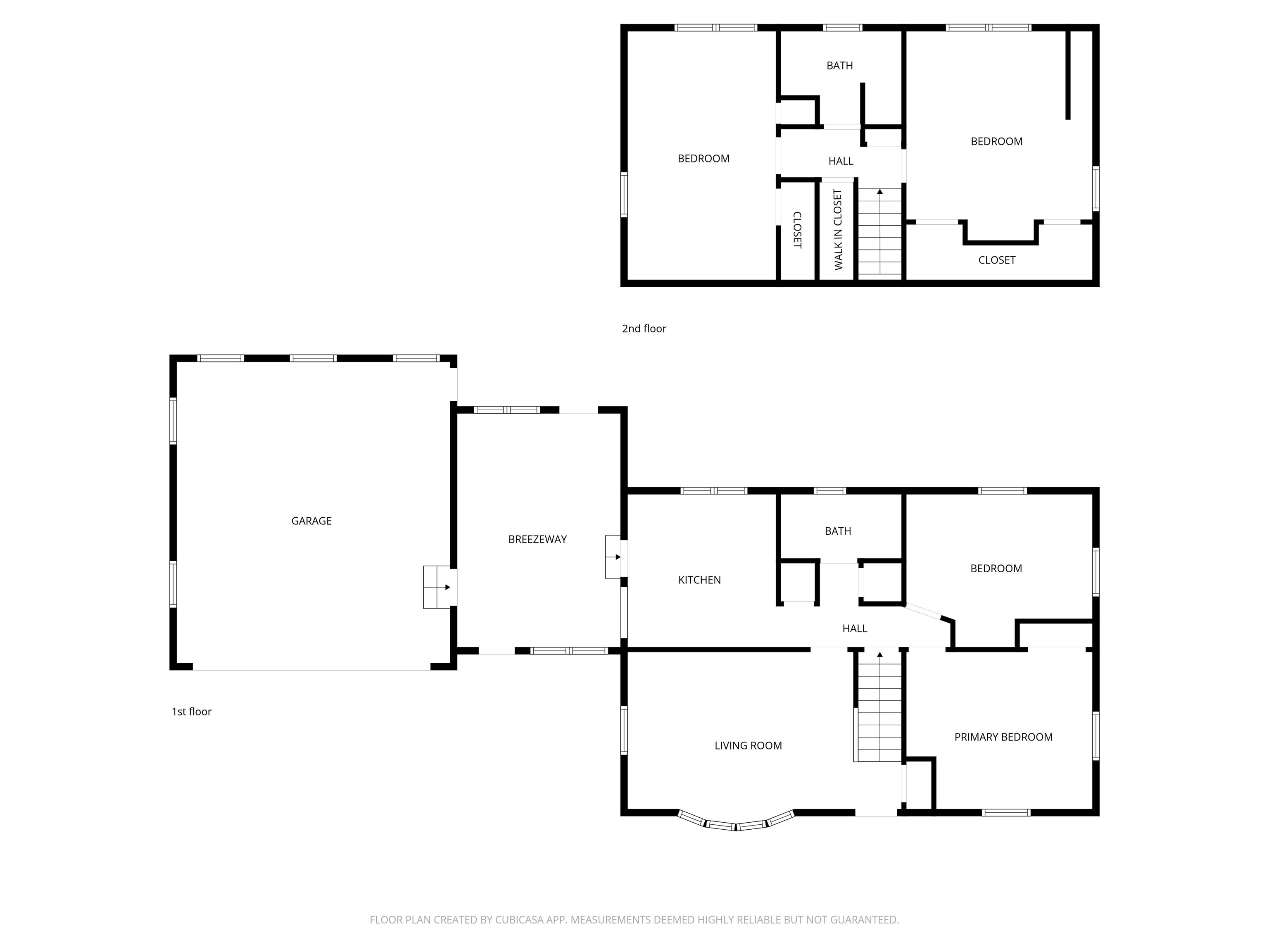
Classic Cape with Exceptional Lot Near Downtown Dover! With over 1,600 sq ft of living space, this home offers space, flexibility and an unbeatable location just a short sidewalk stroll to Dover’s downtown eateries, shops, and growing waterfront district. With four bedrooms, there’s room for everyone, featuring two bedrooms on the main level and two upstairs. The home includes an attached two-car garage, a spacious living room highlighted by a bright bow window, big closets and a full basement for storage. The kitchen is equipped with stainless steel appliances and has plenty of counter and storage space. While a few cosmetic updates will allow the next owner to add their personal style, the home’s layout, size, and condition make it an easy place to settle in and update over time if desired. Outside, the level, open backyard is a standout feature—nearly double the size of a typical in town lot, offering rare space in this location. A great opportunity to enjoy downtown living with room to personalize and grow. Property being conveyed as is.
| 3 weeks ago | Listing updated with changes from the MLS® | |
| 3 weeks ago | Status changed to Pending | |
| 4 weeks ago | Listing first seen on site |
Copyright 2026, PrimeMLS, Inc. All rights reserved. This information is deemed reliable, but not guaranteed. The data relating to real estate displayed on this display comes in part from the IDX Program of PrimeMLS. The information being provided is for consumers’ personal, noncommercial use and may not be used for any purpose other than to identify prospective properties consumers may be interested in purchasing.
Last checked: 2026-02-17 12:48 PM UTC


Did you know? You can invite friends and family to your search. They can join your search, rate and discuss listings with you.