14-2 Jewett RoadHopkinton, NH 03229




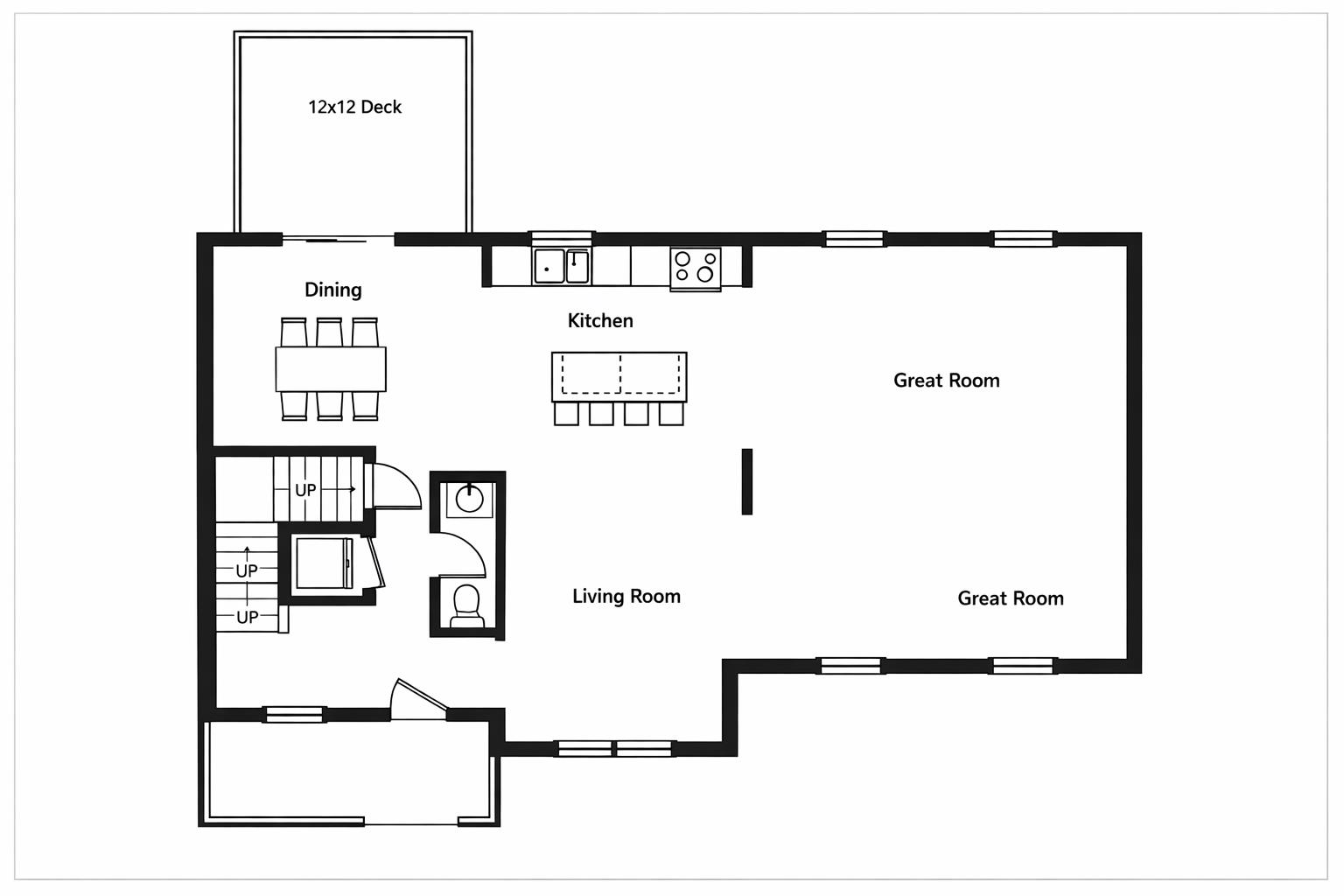
Experience the best of small-town New Hampshire living in this beautifully designed new home in Hopkinton. Perfectly sited on a gently sloping lot, this 3-bedroom, 2.5-bath home blends classic New England curb appeal with modern comfort and efficiency. Step inside to an inviting foyer that opens to a bright, open-concept living and dining area—ideal for everyday living and effortless entertaining. A spacious kitchen with ample cabinetry, center island, and views over the back yard becomes the natural gathering spot. Large windows, quality finishes, and thoughtful lighting create a warm, welcoming feel in every room. Upstairs, the primary suite offers a private retreat with walk-in closet and en-suite bath, joined by two additional bedrooms and a full bath. A standout feature is the under-house garage tucked beneath the right-side gable wing, providing convenient parking, storage, and easy access in every season—especially valuable in New Hampshire winters. Outside, you’ll enjoy a gently curving driveway, usable yard space for play, pets, or gardening, and room to relax on your front porch while taking in the peaceful setting. Located in the desirable Hopkinton school district, this property is ideal for the buyer who wants small-town charm, community events, and outdoor recreation, yet quick access to Concord, I-89, and I-93 for commuting. If you’re dreaming of a low-maintenance, newly built home where you can host friends, work from home, and enjoy four-season New England living, this Hopkinton property is the one you’ve been waiting for. Agent Interest. Build to Suit Many Plans to choose from. Prices and Start at 600k many options and Plans to choose from. Pictures are enhanced for visual options of to be built.
| 14 hours ago | Listing updated with changes from the MLS® | |
| 4 days ago | Listing first seen on site |
Copyright 2026, PrimeMLS, Inc. All rights reserved. This information is deemed reliable, but not guaranteed. The data relating to real estate displayed on this display comes in part from the IDX Program of PrimeMLS. The information being provided is for consumers’ personal, noncommercial use and may not be used for any purpose other than to identify prospective properties consumers may be interested in purchasing.
Last checked: 2026-03-13 01:44 PM UTC


Did you know? You can invite friends and family to your search. They can join your search, rate and discuss listings with you.