Save
Ask
Tour
Hide
$347,000
9 Days On Site
9 Cardinal CircleHillsborough, NH 03244
For Sale|Single Family Residence|Active
3
Beds
2
Total Baths
1
Full Bath
1
Partial Bath
1,210
SqFt
$287
/SqFt
Subdivision:
Cardinal Circle
County:
NH-Hillsborough
Listing courtesy of Joyce Bosse of Red Coat Realty
Call Now: 603-825-6696
Is this the listing for you? We can help make it yours.
603-825-6696
Save
Ask
Tour
Hide
Welcome to a new neighborhood in downtown Hillsboro. About 30 minutes to Concord or Keene or 50 minutes to Manchester-Boston Airport.Choose your own flooring, colors. Broker Interest
Save
Ask
Tour
Hide
Listing Snapshot
Price
$347,000
Days On Site
9 Days
Bedrooms
3
Inside Area (SqFt)
1,210 sqft
Total Baths
2
Full Baths
1
Partial Baths
1
Lot Size
0.65 Acres
Year Built
N/A
MLS® Number
5081146
Status
Active
Property Tax
N/A
HOA/Condo/Coop Fees
N/A
Sq Ft Source
N/A
Friends & Family
Recent Activity
| yesterday | Listing updated with changes from the MLS® | |
| 2 days ago | Price changed to $347,000 | |
| a week ago | Status changed to Active | |
| a week ago | Listing first seen on site |
General Features
Acres
0.65
Number Of Stories
1
Parking
Paved
Property Sub Type
Single Family Residence
Security
Smoke Detector(s)Carbon Monoxide Detector(s)
Sewer
Private Sewer
SqFt Above
1210
SqFt Total
2420
Style
Ranch
Utilities
Cable AvailablePhone Available
Water Source
Public
Zoning
Residential
Interior Features
Appliances
RefrigeratorDishwasherElectric Cooktop
Basement
FullUnfinished
Electric
Circuit Breakers
Flooring
CarpetVinyl
Heating
PropaneHot Water
Interior
Walk-In Closet(s)High Speed Internet
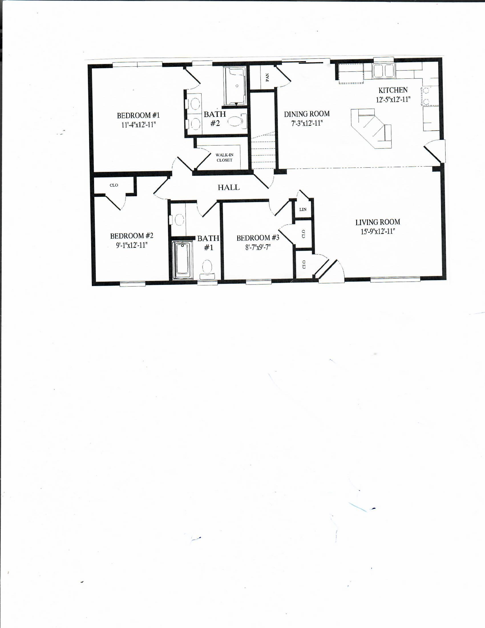
Bedroom 1
Dimensions - 11-4x12-11
Bedroom 2
Dimensions - 9-1x12-11
Bedroom 3
Dimensions - 8-7x9-7
Dining Room
Dimensions - 7-3x12-11
Kitchen
Dimensions - 12-5x12-11
Living Room
Dimensions - 15-9x12-11
Save
Ask
Tour
Hide
Exterior Features
Construction Details
Vinyl Siding
Frontage
100
Lot Features
Near Golf CourseCul-De-Sac
Roof
ShingleAsphalt
Community Features
Accessibility Features
Accessible Full Bath
Roads
Paved
School District
Hillsboro-Deering SAU #34
Schools
School District
Hillsboro-Deering SAU #34
Elementary School
Hillsboro-Deering Elementary
Middle School
Hillsboro-Deering Middle
High School
Hillsboro-Deering High School
Listing courtesy of Joyce Bosse of Red Coat Realty
Copyright 2026, PrimeMLS, Inc. All rights reserved. This information is deemed reliable, but not guaranteed. The data relating to real estate displayed on this display comes in part from the IDX Program of PrimeMLS. The information being provided is for consumers’ personal, noncommercial use and may not be used for any purpose other than to identify prospective properties consumers may be interested in purchasing.
Last checked: 2026-04-04 08:11 AM UTC
Copyright 2026, PrimeMLS, Inc. All rights reserved. This information is deemed reliable, but not guaranteed. The data relating to real estate displayed on this display comes in part from the IDX Program of PrimeMLS. The information being provided is for consumers’ personal, noncommercial use and may not be used for any purpose other than to identify prospective properties consumers may be interested in purchasing.
Last checked: 2026-04-04 08:11 AM UTC
Neighborhood & Commute
Source: Walkscore
Disclosure: Community information and market data powered by Constellation Data Labs. Information is deemed reliable but not guaranteed.
Save
Ask
Tour
Hide

