26 Bert StreetHooksett, NH 03106




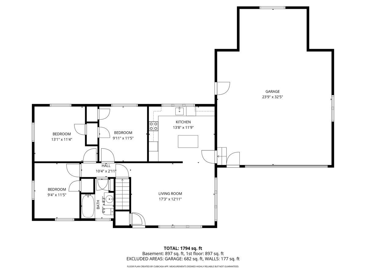
Welcome to this charming single-family home in Hooksett, NH, offering the perfect blend of comfort, convenience, and modern updates. Situated on a level .24-acre lot, this well-maintained property features 3 bedrooms and 1.5 bathrooms, ideal for first-time home buyers, downsizers, or anyone seeking single-level living in a prime commuter location. Step inside to discover a bright, functional layout designed for today’s lifestyle. The heart of the home is the updated chef’s kitchen, complete with stainless steel appliances, quartz countertops, and ample cabinetry, flowing seamlessly into the dining and living areas—perfect for both everyday living and entertaining. The main level offers three comfortably sized bedrooms with flexibility for guests, a home office, or additional living needs. Downstairs, the finished lower level expands your living space, featuring a ¾ bath and versatile areas ideal for a family room, game room, or home gym—giving you the flexibility buyers are searching for today. Additional highlights include a two-car garage, generous storage, and a spacious backyard perfect for outdoor gatherings, gardening, or relaxing in your own private setting. Located just minutes from shopping, dining, and major commuting routes, with easy access to Manchester, Concord, and I-93, this home checks all the boxes for buyers seeking a convenient Hooksett NH location.
| 3 minutes ago | Listing updated with changes from the MLS® | |
| 18 hours ago | Status changed to Active | |
| yesterday | Listing first seen on site |
Copyright 2026, PrimeMLS, Inc. All rights reserved. This information is deemed reliable, but not guaranteed. The data relating to real estate displayed on this display comes in part from the IDX Program of PrimeMLS. The information being provided is for consumers’ personal, noncommercial use and may not be used for any purpose other than to identify prospective properties consumers may be interested in purchasing.
Last checked: 2026-04-03 05:50 PM UTC


Did you know? You can invite friends and family to your search. They can join your search, rate and discuss listings with you.