422 Main Dunstable RoadNashua, NH 03063




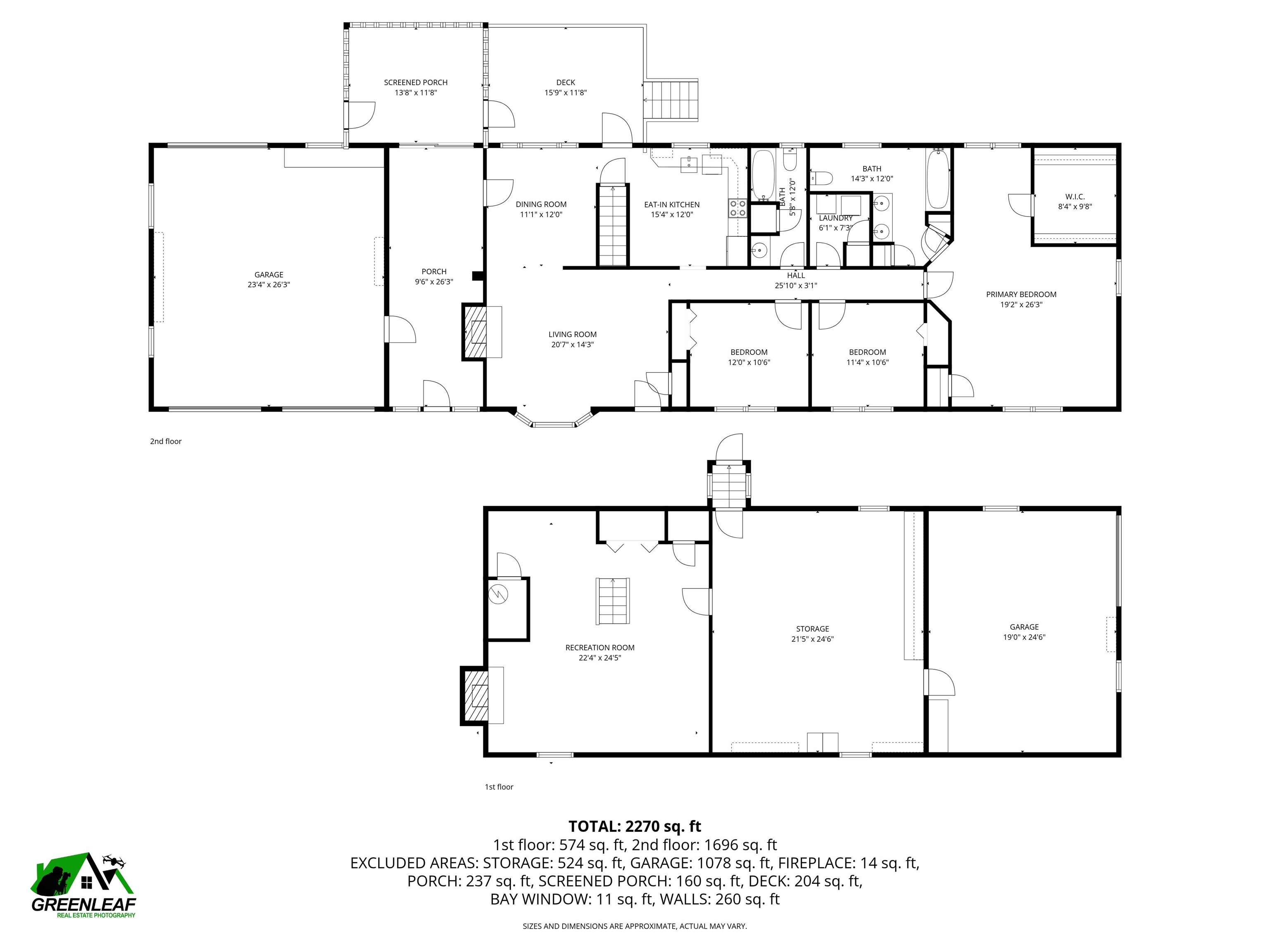
**RARE FIND** ! 1.44 Acre Lot with an Abundance of Open Space is a Plus to the One Story Home with the Primary Suite's Full Bath & Large Walk-In Closet. FIRST FLOOR: Boasts a Laundry Room, Fireplaced Living Room with Beautiful Anderson Bay Window, Updated Eat-In Kitchen Plus a Formal Dining Room, ALL with Hardwood Floors! There are Updated Anderson Windows in the Kitchen, Dining Room & Breezeway, that Leads to a Screened Porch & Large Deck. LOWER LEVEL: Has a Large Playroom with Fireplace, a Walk Out to the Rear Yard, and PLENTY of Storage Areas!! TO TOP IT OFF THIS HOME HAS AN OVERSIZED 2 CAR GARAGE also A GARAGE UNDER WITH A WORKSHOP!! OPEN HOUSE SATURDAY 4/18 11-1:00 agent is related to seller
| 7 days ago | Listing updated with changes from the MLS® | |
| a week ago | Status changed to Active Under Contract | |
| 2 weeks ago | Listing first seen on site |
Copyright 2026, PrimeMLS, Inc. All rights reserved. This information is deemed reliable, but not guaranteed. The data relating to real estate displayed on this display comes in part from the IDX Program of PrimeMLS. The information being provided is for consumers’ personal, noncommercial use and may not be used for any purpose other than to identify prospective properties consumers may be interested in purchasing.
Last checked: 2026-04-27 02:16 PM UTC


Did you know? You can invite friends and family to your search. They can join your search, rate and discuss listings with you.